3/81A Cowper Street Dickson ACT
- 3
- 2
- 2
Sophisticated 3 bedroom townhome within private gated community
WINNER - MBA ACT Awards 2025 - Medium Density Townhouses
Discover a lifestyle of ease and elegance in this high-quality executive townhome, ideally situated between the vibrant Dickson shopping precinct and Ainslie IGA. Perfect for those seeking low maintenance living without sacrificing quality, this home offers modern amenities and a superb location. Built and developed by award-winning REP building, designed by Oztal Architects and interiors by Studio Black Interiors, you can be assured all aspects are built to a standard rarely seen in Canberra.
Step inside to experience a beautifully designed space with high voids in the main entrance area, creating an inviting and spacious atmosphere. Natural light floods the home, highlighting the sophisticated finishes and architectural details creating a sense of awe and appeal.
The kitchen is a chef's delight, featuring sleek waterfall-edge stone benchtops and top-of-the-line Bosch stainless steel appliances. With ample counter space and an open plan living dining area straight onto the specious courtyard, it's an ideal setting for everyday meals and entertaining guests.
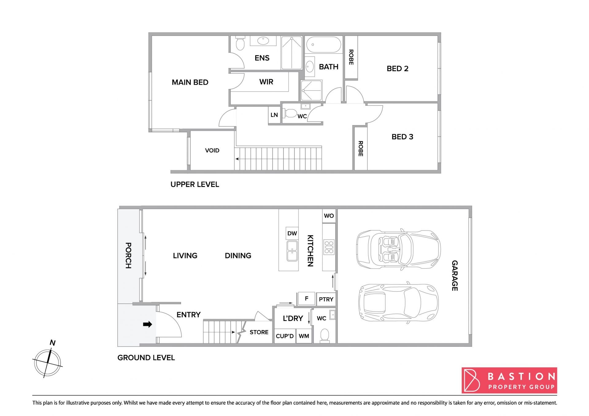
The thoughtful layout includes three well-sized bedrooms, with the main bedroom features a luxurious ensuite, while the remaining bedrooms with built-in robes. The full bathroom upstairs and an extra wet closet downstairs ensure ample facilities for all residents.
Additional features include a double garage with internal access located on the same level as the living area, providing easy access from the back of the home. Located moments away from the City Centre, this home offers easy access to shopping, schools, and public transport. Experience the perfect blend of convenience and comfort in this stunning architecturally designed townhome that your friends and family will envy.
- Luxurious townhome with top-of-the-range inclusions
- 3 generously sized bedrooms, all with built-in-robes
- Polished concrete flooring to bottom level of home
- Full bathroom upstairs; ensuite off main bedroom
- Additional powder room downstairs for guests and separate laundry room
- Double garage on the same level as living, with internal access
- Low-maintenance home with high voids in the main entrance area
- Kitchen with waterfall-edge stone benchtops and Bosch stainless steel appliances
- Under-tile heating in ensuite
- Coded security gate on driveway
- 2 visitor cars paces within development
- Separate dining and living areas
- Individual mailbox directly in front of courtyard wall
- Front gate electronically unlatched with video intercom
- Private 40m front courtyard perfect for entertainment
- Ducted reverse cycle heating and cooling throughout
- Prime location between Dickson shopping precinct and Ainslie IGA
- Moments away from the City Centre
- Internal living: 130m2 approx.
- Garage: 40m2 approx.
- Private Outdoor Space: 40m approx.
- EER: 6.3
- Strata: $3,305.28 per annum approx.
* Marketing photos are of Residence 4 (Residence Three is a mirror image of Residence 4)
* Strata fees for the first 2 years will be covered by the developer. This will be paid as a rebate from the developer to all purchasers at settlement.*
Whilst all care has been taken to ensure accuracy, the material and information contained are approximate only and no warranty can be given. Bastion Property Group does not accept responsibility and disclaim all liabilities regarding any errors or inaccuracies contained herein. You should not rely upon this material as a basis for making any formal decisions. We recommend all interested parties to make further enquiries.
Discover a lifestyle of ease and elegance in this high-quality executive townhome, ideally situated between the vibrant Dickson shopping precinct and Ainslie IGA. Perfect for those seeking low maintenance living without sacrificing quality, this home offers modern amenities and a superb location. Built and developed by award-winning REP building, designed by Oztal Architects and interiors by Studio Black Interiors, you can be assured all aspects are built to a standard rarely seen in Canberra.
Step inside to experience a beautifully designed space with high voids in the main entrance area, creating an inviting and spacious atmosphere. Natural light floods the home, highlighting the sophisticated finishes and architectural details creating a sense of awe and appeal.
The kitchen is a chef's delight, featuring sleek waterfall-edge stone benchtops and top-of-the-line Bosch stainless steel appliances. With ample counter space and an open plan living dining area straight onto the specious courtyard, it's an ideal setting for everyday meals and entertaining guests.
The thoughtful layout includes three well-sized bedrooms, with the main bedroom features a luxurious ensuite, while the remaining bedrooms with built-in robes. The full bathroom upstairs and an extra wet closet downstairs ensure ample facilities for all residents.
Additional features include a double garage with internal access located on the same level as the living area, providing easy access from the back of the home. Located moments away from the City Centre, this home offers easy access to shopping, schools, and public transport. Experience the perfect blend of convenience and comfort in this stunning architecturally designed townhome that your friends and family will envy.
- Luxurious townhome with top-of-the-range inclusions
- 3 generously sized bedrooms, all with built-in-robes
- Polished concrete flooring to bottom level of home
- Full bathroom upstairs; ensuite off main bedroom
- Additional powder room downstairs for guests and separate laundry room
- Double garage on the same level as living, with internal access
- Low-maintenance home with high voids in the main entrance area
- Kitchen with waterfall-edge stone benchtops and Bosch stainless steel appliances
- Under-tile heating in ensuite
- Coded security gate on driveway
- 2 visitor cars paces within development
- Separate dining and living areas
- Individual mailbox directly in front of courtyard wall
- Front gate electronically unlatched with video intercom
- Private 40m front courtyard perfect for entertainment
- Ducted reverse cycle heating and cooling throughout
- Prime location between Dickson shopping precinct and Ainslie IGA
- Moments away from the City Centre
- Internal living: 130m2 approx.
- Garage: 40m2 approx.
- Private Outdoor Space: 40m approx.
- EER: 6.3
- Strata: $3,305.28 per annum approx.
* Marketing photos are of Residence 4 (Residence Three is a mirror image of Residence 4)
* Strata fees for the first 2 years will be covered by the developer. This will be paid as a rebate from the developer to all purchasers at settlement.*
Whilst all care has been taken to ensure accuracy, the material and information contained are approximate only and no warranty can be given. Bastion Property Group does not accept responsibility and disclaim all liabilities regarding any errors or inaccuracies contained herein. You should not rely upon this material as a basis for making any formal decisions. We recommend all interested parties to make further enquiries.