23 Beauchamp Street Deakin ACT
- 4
- 3
- 2
Classic family home with incredible north-facing views.
Set in a private, elevated loop street near to Red Hill Nature Reserve, this generous family home offers limitless potential. Behind its classic, European inspired facade, you are welcomed to a spacious family footprint, maximising light, space and the outstanding views from Black Mountain to the Molonglo Valley. Featuring original timber floors, high ceilings, large profile windows and generous proportions, the home is ripe for re-imagining, with the future scope to redevelop or rebuild and construct your dream family home. With four good size bedrooms, two bathrooms and a flexible downstairs space with additional bathroom, the existing floor plan provides numerous options for a long-term family residence. Situated just a short drive to Deakin Shops, Woden Town Centre, Canberra Hospital and revered public and private schools, immerse yourself in the highly desirable Inner South lifestyle. A rare opportunity in an ultra-desirable location, with many long-term possibilities!
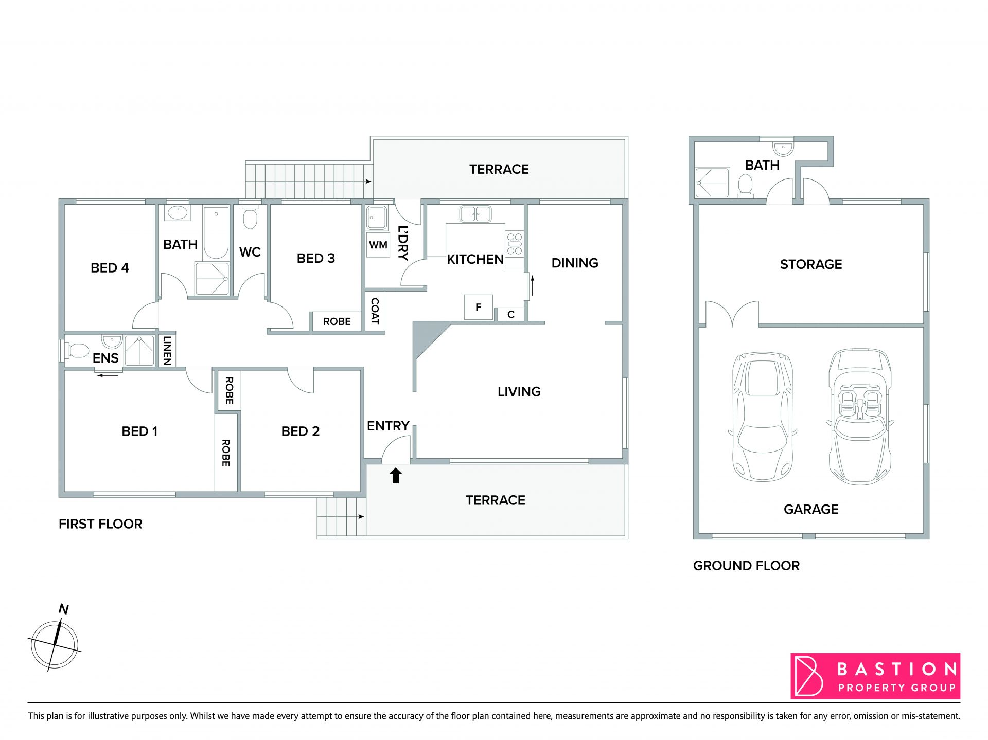
- Double brick family home, set upon 739m2 of elevated land.
- Ducted gas heating, evaporative cooling throughout.
- Original timber floors, large profile windows throughout (some upgraded to double glazing).
- Large formal living room, opening onto a covered front terrace.
- Updated kitchen with gas cook top, electric oven and stone bench tops.
- Spacious main bedroom with ensuite.
- Three further double bedrooms, serviced by an updated bathroom with separate W/C.
- Upstairs laundry.
- Downstairs storage area with third bathroom.
- Double garage with automatic doors and cavernous under-house storage.
- Wine cellar and workshop under house.
- Elevated rear terrace with sensational north views.
- Fenced rear garden with fruit trees.
- Short walk to Red Hill Nature Reserve.
- Easy access to Deakin Shops, Equinox precinct, Canberra Hospital.
- Close proximity to Canberra Girls Grammar School, Alfred Deakin High School, Canberra College and Canberra Grammar School.
Living size: 152m2
Gross floor area: 216m2
Block size: 739m2
UCV: $1,310,000 (2024)
Construction date: 1967
EER: 2.5
Estimate of rental return: $1,050 - $1,150 per week.
Whilst all care has been taken to ensure accuracy, the material and information contained are approximate only and no warranty can be given. Bastion Property Group does not accept responsibility and disclaim all liabilities regarding any errors or inaccuracies contained herein. You should not rely upon this material as a basis for making any formal decisions. We recommend all interested parties to make further enquiries.
- Double brick family home, set upon 739m2 of elevated land.
- Ducted gas heating, evaporative cooling throughout.
- Original timber floors, large profile windows throughout (some upgraded to double glazing).
- Large formal living room, opening onto a covered front terrace.
- Updated kitchen with gas cook top, electric oven and stone bench tops.
- Spacious main bedroom with ensuite.
- Three further double bedrooms, serviced by an updated bathroom with separate W/C.
- Upstairs laundry.
- Downstairs storage area with third bathroom.
- Double garage with automatic doors and cavernous under-house storage.
- Wine cellar and workshop under house.
- Elevated rear terrace with sensational north views.
- Fenced rear garden with fruit trees.
- Short walk to Red Hill Nature Reserve.
- Easy access to Deakin Shops, Equinox precinct, Canberra Hospital.
- Close proximity to Canberra Girls Grammar School, Alfred Deakin High School, Canberra College and Canberra Grammar School.
Living size: 152m2
Gross floor area: 216m2
Block size: 739m2
UCV: $1,310,000 (2024)
Construction date: 1967
EER: 2.5
Estimate of rental return: $1,050 - $1,150 per week.
Whilst all care has been taken to ensure accuracy, the material and information contained are approximate only and no warranty can be given. Bastion Property Group does not accept responsibility and disclaim all liabilities regarding any errors or inaccuracies contained herein. You should not rely upon this material as a basis for making any formal decisions. We recommend all interested parties to make further enquiries.